
At GPS Design we specialise in traditional barn conversions. We love to combine restoration and innovation to transform traditional buildings.
We have a wealth of technical & practical experience, allowing us to create designs that meet your needs.
This form of permitted development allows for the conversion of agricultural buildings to residential . With a simplified planning process, this is often a popular option for the conversion of modern agricultural buildings.

Covering all aspects of agricultural development, including new general purposes buildings, farmstead layouts & grant funded projects.
We have experience in rural diversification projects including farm shops, holiday lets and camping pods to help you stay ahead of the curve in the ever-changing rural economy.

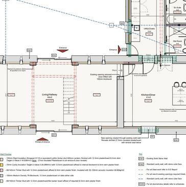
Using a mixture of traditional surveying methods and the latest technology, we can produce accurate floor plans, sections and elevations of existing buildings.

Trained in architectural technology & proficient with AutoCAD software. We can provide freelance architectural services.
Copyright © 2024 GPS Design - All Rights Reserved.
Powered by GoDaddy